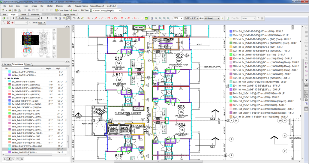
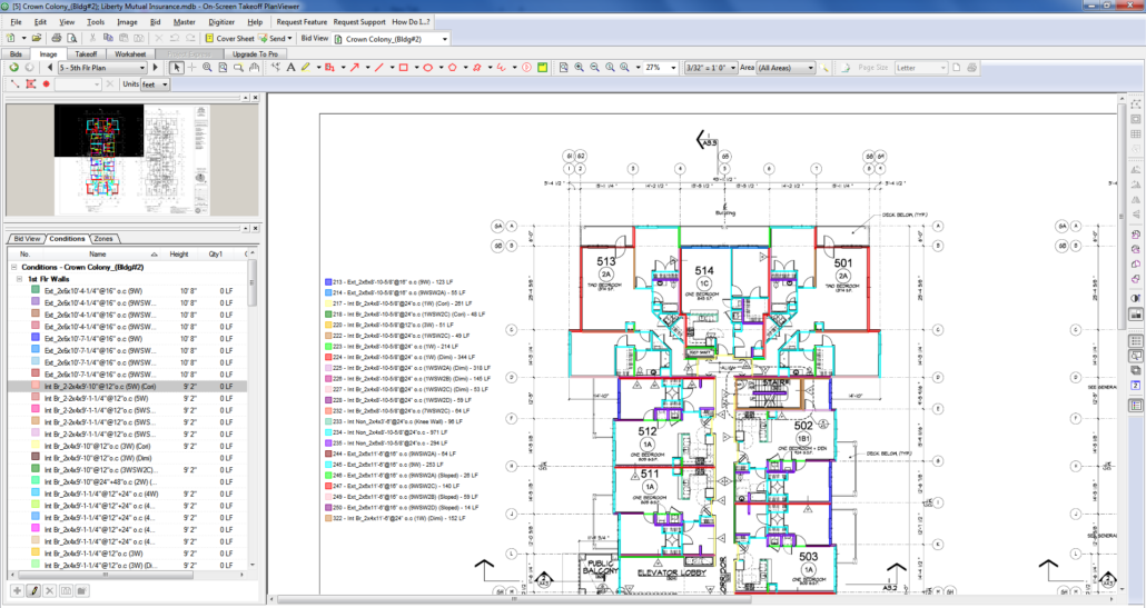
LUMBER TAKEOFF SAMPLES
| Division 6 - Wood & Plastic | Pdf File | Excel File | Zip File |
|---|---|---|---|
| Lumber Takeoff (On Center) |
LUMBER TAKEOFF SCREENSHOTS
Send Us
drawings and scope
Click the Dropbox link and send us your complete scope and drawings.
We will provide you cost for takeoff in 24 to 48 hours.










